| NIVEAU | PIÈCE | SURFACE |
Prix 2 830 000 €
Bureau
PARIS 9EME ARRONDISSEMENT (75009)
Ref 75040105
Ref 1841
- 200 m²
- 10 pièce(s)
- NC chambre(s)
- NC
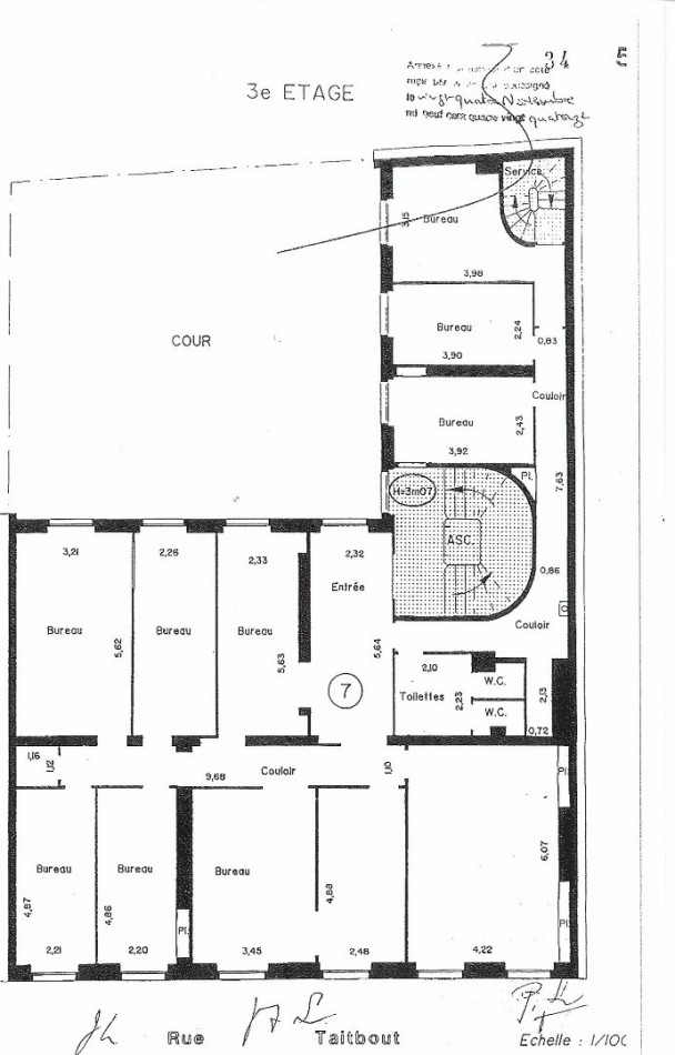
Exclusivité - A vendre BUREAUX avec COMMERCIALITE 198 m2 PARIS 9ème rue Taitbout Métro Trinité / St Georges, dans un bel immeuble pierre de taille ravalé, gardienne, interphonie, vigik, partie communes rénovées en 2022.
Possibilité de division, deux portes palières.
Au 3ème étage avec ascenseur, excellent plan traversant avec 10 Bureaux dont 1 grande salle de réunion, cuisine, bloc sanitaires, très belle hauteur sous plafond.
Câblage informatique 6A / Baies de brassage/
fibre optique /
chauffage individuel au gaz /
cave /
Bien rare à la vente /
Sophie Asselin
Les informations sur les risques auxquels ce bien est exposé sont disponibles sur le site Géorisques
Diagnostics de performance énergétique
Voir le descriptif des pièces
À proximité de ce bien ...
Plus d'informations sur ce bien
Découvrez nos biens similaires ...
ou
Envoyer
cette annonce à un ami
cette annonce à un ami
Votre E-mail a bien été envoyé.
Une erreur s’est produite lors de l’envoi de votre e-mail.
Veuillez réessayer à nouveau
Veuillez réessayer à nouveau




















